Robinia I - dom z poddaszem użytkowym

Robinia I to dom jednorodzinny w technologii szkieletowej z poddaszem użytkowym, przestronnym tarasem, balkonem oraz wejściem od strony ściany szczytowej. Powierzchnia całkowita domu to 117 m2. Do dyspozycji mieszkańców jest salon z aneksem kuchennym oraz dwa pokoje.

Rzuty domu

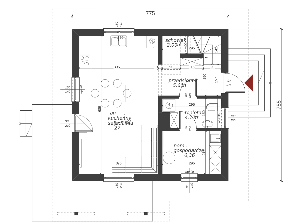
Parter
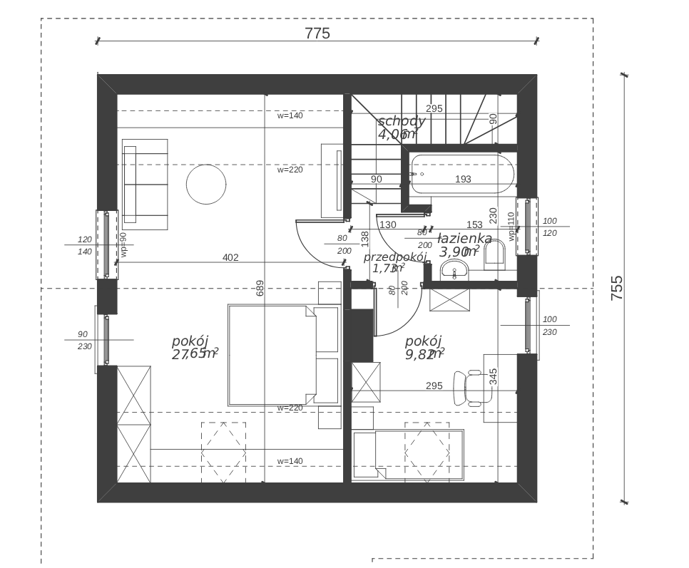
Poddasze

Orientacyjny koszt realizacji

Powierzchnia domu

Karty projektu

Kontakt

Adres biura

ul. Krakowska 217, Trzebinia - Młoszowa